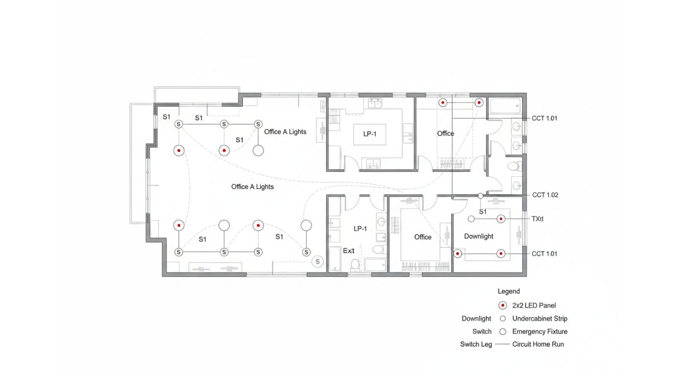
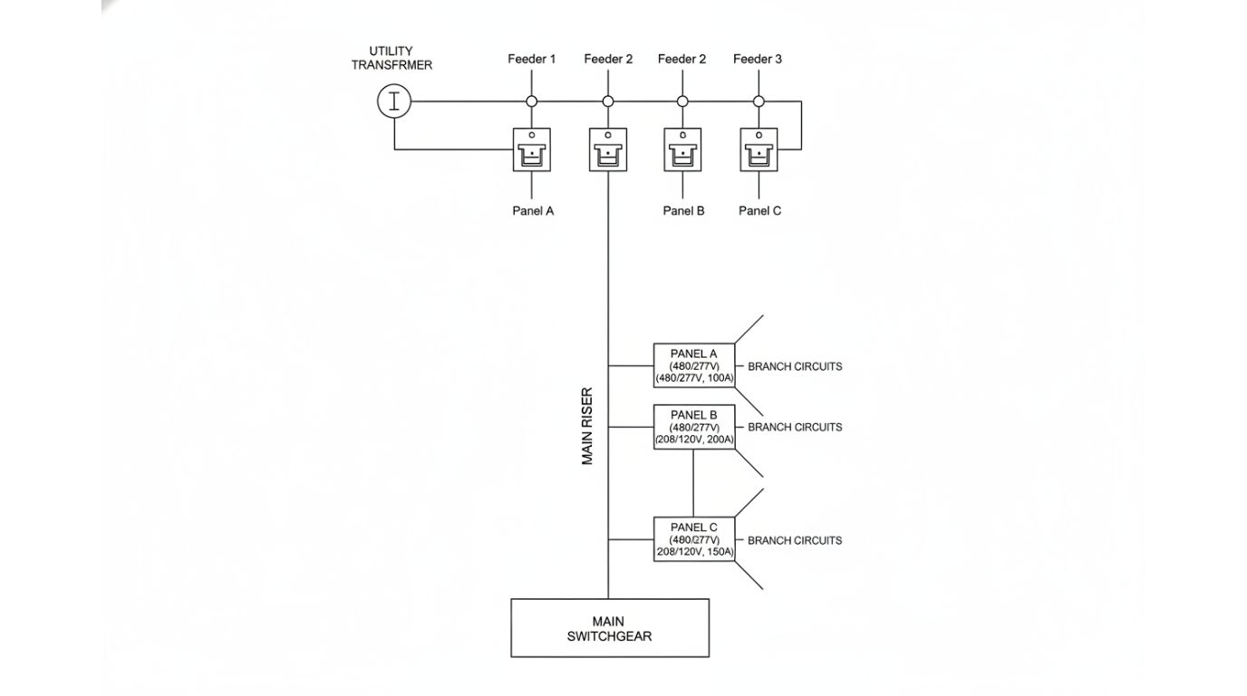
Electrical Drafting Services for Accurate System Documentation
Precise 2D and 3D electrical drawings that support design documentation, permit submissions, fabrication, and construction for power, lighting, and conduit systems.
- Produce detailed electrical drawings from design inputs, single-line diagrams, or existing documents
- Support fabrication with dimensioned conduit shop drawings and panel layout details
- Deliver drawings compliant with NEC, NFPA, and IEEE standards
